Sector-53, Golf Course Road,Gurugram

Mayfair – Sector 53, Gurugram

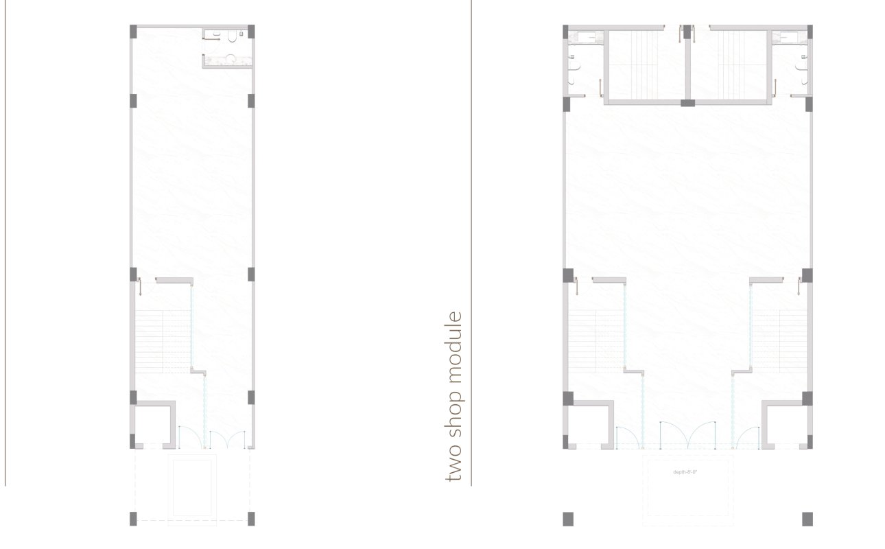
SCO, Sector 53, Gurugram Premium Shop-Cum-Office spaces at the heart of Gurugram. Designed for retail and corporate excellence with unmatched visibility and prime connectivity.

View More
Check More
  • Price Range ₹ On Request

  • Property size 145 Sq Yards

  • Typesco-plot-sale

  • Status under-construction

Our SCO project in Sector 53, Gurugram redefines commercial opportunities with a blend of retail and office spaces crafted for growth.

Key Highlights:

  • Strategic location on Golf Course Road

  • High visibility with excellent footfall

  • Flexible layouts for diverse businesses

  • Modern infrastructure with ample parking

  • Ideal for retail brands, dining outlets, and corporate offices

Location advantages

    📍 Location Advantage

    • Situated in Sector 53, Gurugram – one of the most premium commercial zones

    • Direct connectivity to Golf Course Road, DLF City Phase-5, Huda Metro Station

    • Surrounded by high-end residential catchments and corporate hubs

    • Easy access to MG Road, Sohna Road, Cyber City & NH-48

    • Close proximity to metro stations, malls, and business districts